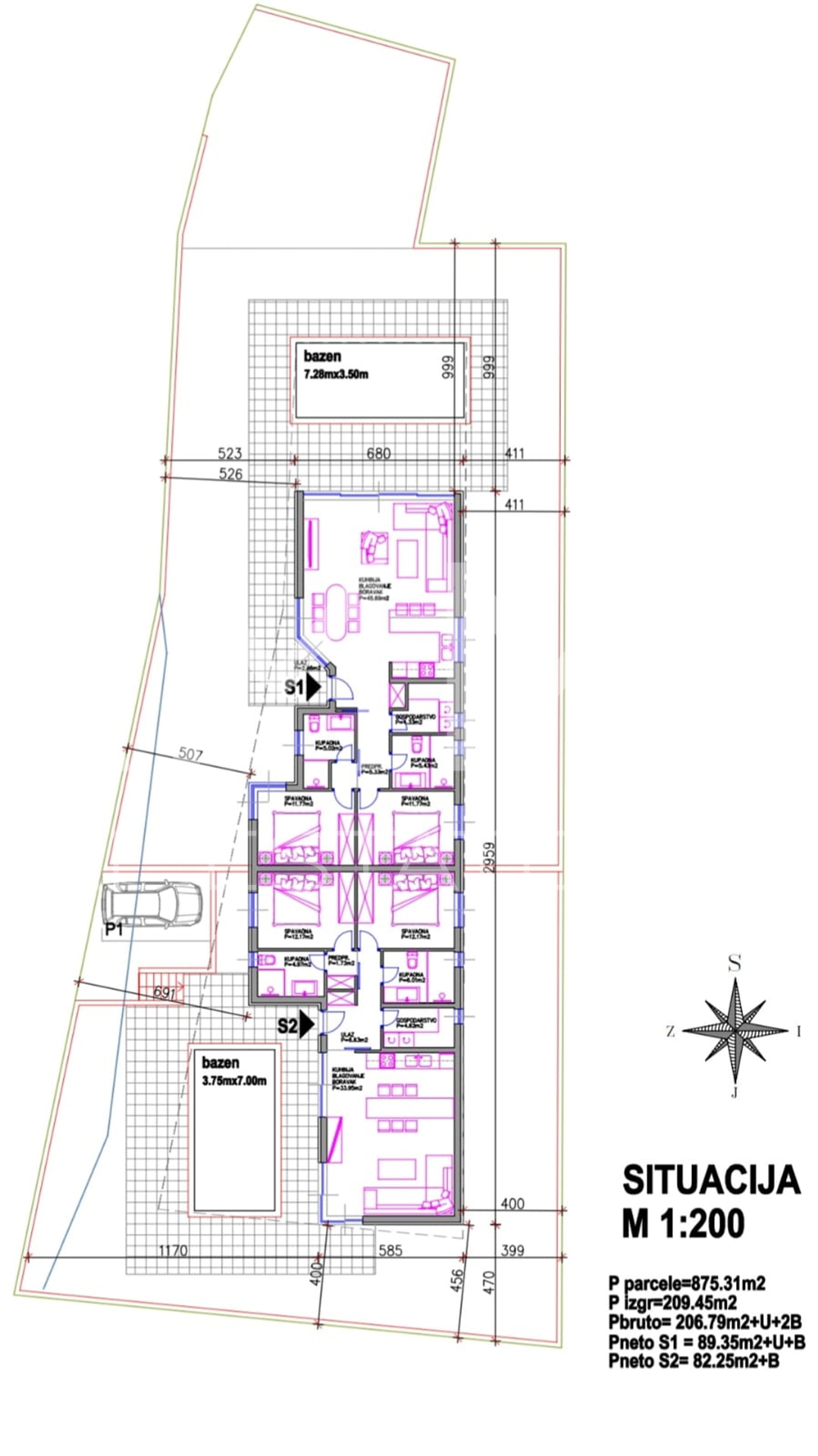
U srcu slikovitog Barbana, nudi se na prodaju moderna dvojna kuća izgrađena 2024. godine. S površinom od 89,35 m2, ova nekretnina predstavlja savršenu ravnotežu između suvremene arhitekture i zelenog okruženja.Sastoji se od dvije spavaće sobe, dvije kupaonice, kuhinje, blagavaonice, svjetlog dnevnog boravka i ...
U srcu slikovitog Barbana, nudi se na prodaju moderna dvojna kuća izgrađena 2024. godine. S površinom od 89,35 m2, ova nekretnina predstavlja savršenu ravnotežu između suvremene arhitekture i zelenog okruženja.Sastoji se od dvije spavaće sobe, dvije kupaonice, kuhinje, blagavaonice, svjetlog dnevnog boravka i ostave. Smještena na parceli od 350 m2, kuća privlači pažnju svojom mirnom lokacijom i sunčanom orijentacijom prema jugu. Blizina prirode pruža mir i privatnost, idealno za ljubitelje otvorenih prostora i ljubimaca. Kuću krase velike staklene stijene koje daju veliki izvor svijetlosti osiguravajući udobnost tijekom cijele godine. U kući je napravljena prva faza podnog grijanja. Dodatne pogodnosti uključuju osvježavajući bazen i klimatizaciju, dok vanjski prostor obuhvaća parkiralište i asfaltirani put za lak pristup. Barban, poznat po svojoj mirnoj atmosferi, nudi sve potrebne sadržaje u neposrednoj blizini. Blizina glavnih prometnica olakšava svakodnevni život i omogućuje jednostavan pristup obližnjim školama, trgovinama i ostalim potrebnim sadržajima. Pozivamo sve zainteresirane da kontaktiraju za dodatne informacije i dogovor oko razgleda ove jedinstvene nekretnine. Otkrijte svoj novi dom u srcu Istre.
Rovinj
Sveti Petar u Šumi
Vodnjan, Barbariga
Ližnjan, Šišan
Poreč
Oprtalj, Livade
Valbandon
Rakalj
Pula, Šikići